Un raccard dans le Valais




Rénovation d'un raccard
Mollens, Crans-Montana, Valais, Suisse
2023 - 2024
Conservation du bâti
Situé à Crans-Montana dans le Valais, le raccard était utilisé comme abri pour les animaux dans un premier temps, puis comme stockage de matériel. Aujourd'hui les client.e.s souhaitent le rénover pour pouvoir y habiter.
Le but de se projet consiste à construire en gardant un maximum l'identité du bâtiment et en conservant le plus de matériaux existant possible. Les client.e.s souhaitent que la construction ait un impact carbone minimum et souhaitent pouvoir organiser des chantiers participatifs à différentes phases du projet.


Maintien de l'identité
La position de chaque fenêtre a été réfléchit afin de maintenir l'identité visuelle en respectant des symétries du raccard. En enlevant un madrier sur 2 au niveau de la façade, le rythme de la façade est maintenu.






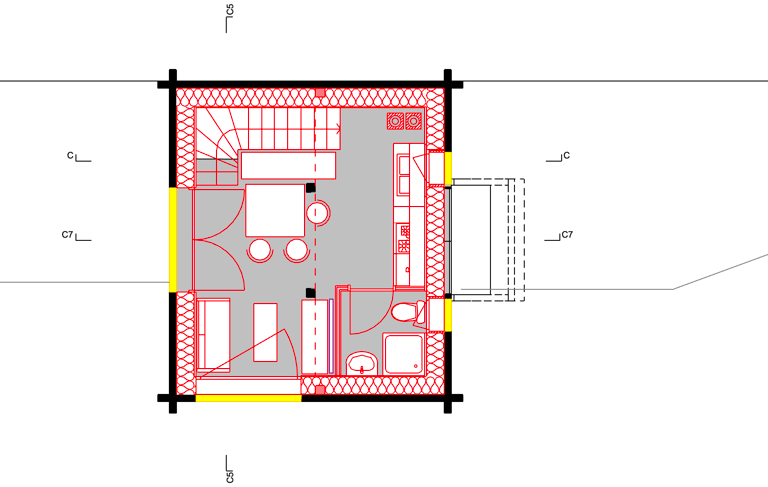
Une simplicité de l'espace
La surface du bâtiment étant très restreinte, chaque espace a dû être réfléchi de façon à rationaliser au maximum chaque pièces.
